初めてフリーアドレスのレイアウトを導入する際のポイントは?事例や注意点も紹介

「フリーアドレス」とは、従業員が固定席を持たずに、空いている席を自由に選んで働けるワークスタイルのことです。
部署を超えたコミュニケーションの活性化や、オフィススペースの効率的な利用によるコスト削減などがメリットで、現代の多様な働き方にも対応しやすいため、広く注目されています。
オフィスの移転・改装を機に、フリーアドレスを取り入れようとする企業は多いですが、「何を押さえればフリーアドレスの導入がうまくいくのか?」ということが、最初の課題になるようです。
この記事では、初めてでも導入しやすいフリーアドレスのレイアウトについて、オフィス移転・改装を手がける株式会社オリバーが解説します。
- 初めてでも導入しやすいフリーアドレスレイアウトの進め方のポイント
- 導入しやすくおしゃれなフリーアドレスオフィスのアイデア
- 【事例】オリバー自社オフィスのフリーアドレスレイアウト
- フリーアドレスレイアウトの効果と基本ルール
- フリーアドレスレイアウト導入で陥りやすい失敗と注意点
について、詳しく解説します。
初めてでも導入しやすいフリーアドレスレイアウトの進め方のポイント

初めてフリーアドレスを導入する際は、きちんとルールを整理し明文化することが、特に大切です。
今までの運用が固定席だった場合、従業員の「フリーアドレスを導入して本当に大丈夫?」という不安は、予想以上に大きいものです。
従業員が何を不安に思っているのかを整理して、1つずつ解消しなければ、フリーアドレスを導入してもうまくいきません。
- 「個人の荷物はどうするのか?」という不安を解消する
- 「外線電話および内線電話をどうするのか?」という不安を解消する
- 「ハンコ文化」を変えていく
- グループアドレスでスモールスタートする
- 15人程度のユニットで導入前との変化を比較する
- マネージャー席の配置を調整する
- 導入しやすい部署を判断して順番に導入する
上記は、初めてでも導入しやすいフリーアドレスレイアウトの進め方の7つのポイントです。
それぞれのポイントについて以下で解説していきますが、フリーアドレス導入において最も大切なのは「空席をうまく使うこと」であると認識しておきましょう。
1.「個人の荷物はどうするのか?」という不安を解消する
フリーアドレスレイアウトの不安の例としては、「今まで置いていた個人の荷物が引き出しに置けなくなるが、どうしたらいいのか?」ということが挙げられます。
上記の場合、まずは「引き出しに何を置いているのか?」というところから、確認する必要があります。
対応策としては、「個人用のロッカーを用意する」「共有物のコーナーを作る」といったことが挙げられます。
ただ、上記について伝えると、「わざわざ物を取りに行かないといけないのは面倒……」とネガティブな反応も見られます。
よって、「個人の荷物を置けない=面倒」という印象を払拭できるような、フリーアドレスによるポジティブな効果をしっかりと伝える必要があります。
2.「外線電話および内線電話をどうするのか?」という不安を解消する
フリーアドレスのレイアウトにする場合、「外線電話および内線電話をどうするのか?」という点も、慎重に検討しなくてはいけません。
例えば、PCを経由して電話が通じるようにする方法などを、導入・活用するとよいでしょう。
3.「ハンコ文化」を変えていく
現状、「ハンコ文化」である場合には、フリーアドレスレイアウトの導入にあたって、仕組みを大きく変えていく必要があります。
フリーアドレスでは、ハンコを貰うべき人がどこに座っているのかわからない(=円滑な業務ができなくなる)ためです。
ハンコ自体をなるべくなくす、Web上でハンコを押せるようにする(電子印鑑)などの、工夫が必要でしょう。
4.グループアドレスでスモールスタートする

フリーアドレスを、いきなり全員でスタートさせる必要はありません。
まずはデスクで「島」を作り、部署・チーム単位で、「島」の範囲内で自由に座れる形式を試してみるとよいでしょう。
上記のようなスモールスタートのメリットは、フリーアドレスレイアウトに対する抵抗感を軽減できることにあります。
5.15人程度のユニットで導入前との変化を比較する
先ほどまずは部署・チーム単位で、フリーアドレスをスタートさせるとよいと述べましたが、あまりにユニットの人数が少なすぎると、結局席が固定化されてしてしまう可能性があります。
上記を防ぐためには、ユニットの人数を15人程度にすることが効果的です。
15人程度になると、座席の自由度が高くなり、従業員同士の交流の変化を実感しやすくなります。
なおフリーアドレスの導入前・導入後の変化は、小さなことであっても確認・比較することが大切です。
6.マネージャー席の配置を調整する
マネージャー席は完全に固定することなく、なおかつ部下の状況把握が可能な位置に置くことがポイントです。
「部署内でどう見えるか?」「コミュニケーションは取れるか?」といったことも、忘れずに考慮します。
7.導入しやすい部署を判断して順番に導入する
先にも述べたようにフリーアドレスは、最初から全員で始める必要はありません。
なぜなら、人事評価など個人情報を扱う人事部や、金庫を持つことがある経理部などは、固定席に依存しており、フリーアドレスにしにくいからです。
上記のような部門は、フリーアドレスの導入を後にしてもよいでしょう。
逆に、外出が多い営業部門や、現場仕事が多い技術部門では、フリーアドレスを導入しやすいです。
上記のような部門では、フリーアドレスの導入を優先して行い、フリーアドレスレイアウトを浸透させるきっかけとするとよいでしょう。
導入しやすくおしゃれなフリーアドレスオフィスのレイアウトアイデア

現状固定席のオフィスでは、島型・対向のレイアウトが多いでしょう。
端にマネージャー席があって、その後ろに部門長の席があるようなレイアウトです。
上記のようなレイアウトに慣れている場合、急に異形デスクなどオーソドックスではないレイアウトにするのは、いくらおしゃれであっても抵抗があると思います。
そのため、最初はロングデスクを用いたレイアウトが中心となることが多いでしょう。
家具選びに制限が多少あっても、おしゃれさとフリーアドレスを両立することは十分可能です。
またフリーアドレスにすると「整理整頓」が前提となるため、オフィスを整った状態にキープしやすいというメリットがあります。
- デスクの整理整頓や配線処理を工夫する
- 導入しやすいロングデスクは「素材」を選ぶ
- ABWへのステップとしての要素を導入する
上記は、導入しやすくおしゃれなフリーアドレスオフィスにするための、3つのアイデアです。
それぞれのアイデアについて、以下で簡単に解説します。
1.デスクの整理整頓や配線処理を工夫する
先にも述べたように、フリーアドレスレイアウトは「整理整頓」が前提です。
私物を出しっぱなしにしないというのはもちろん、モニター周りや配線の乱雑さは、オフィスの見栄えを大きく損なうため、配線が見えないデスクを導入するなどして、工夫する必要があります。
2.導入しやすいロングデスクは「素材」を選ぶ
初期のフリーアドレスレイアウトにおいて、ロングデスクが導入しやすいことは先述しましたが、ロングデスクには「無機質な印象になりやすい」というデメリットがあります。
そのため、ロングデスク中心のレイアウトでも無機質にならないよう、木製素材を選んだりデザイン性の高い天板を選んだりして、見た目にこだわってみることがポイントです。
また、上下昇降デスクを取り入れてみると、座席の自由度がより高くなります。
3.ABWへのステップとしての要素を導入する
フリーアドレスの導入にあたって、集中スペース・交流スペース・リラックススペースなど、目的別のスペースを少しずつ用意するとよいでしょう。
上記のようにすると、ABW(Activity Based Working:仕事の内容や目的に応じて働く場所を自由に選ぶ)的な働き方へと、自然と移行することが可能になります。
<関連コラム>
→ ABWとは?フリーアドレスとの違いやメリット・デメリットをわかりやすく解説
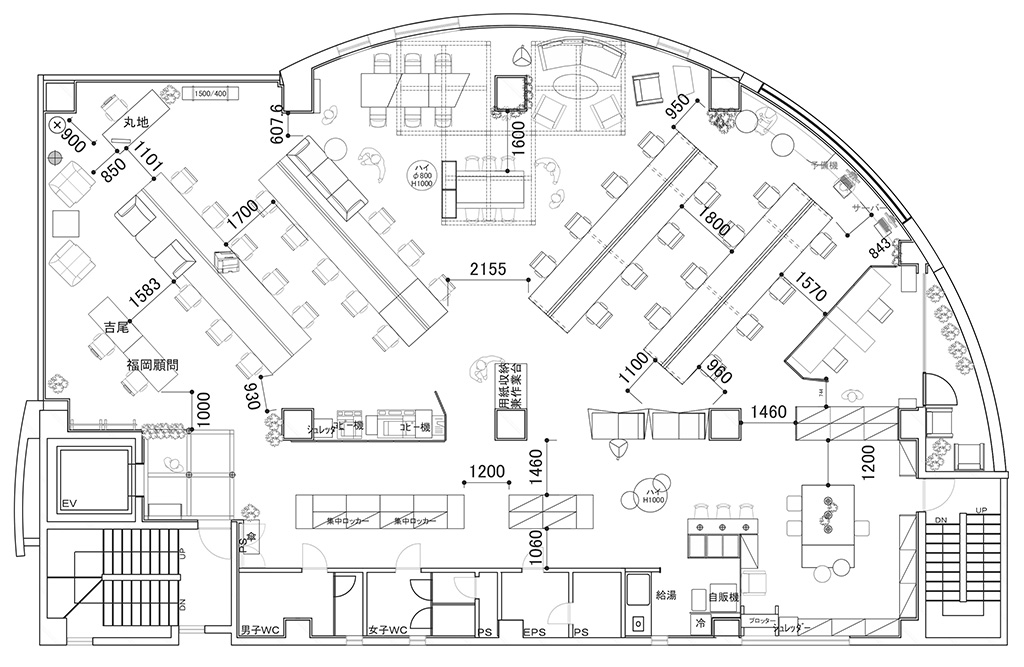
【事例】オリバー自社オフィスのフリーアドレスレイアウト
以下では、当社オリバーのオフィスのフリーアドレスレイアウトを、2つご紹介します。
1.オリバー東京・西葛西オフィス5階:20人単位のグループアドレスで交流を促進

オリバー東京・西葛西オフィス5階は、2017年ごろに改装を行いました。
初期はロングデスクを中心にレイアウトしています。
20人程度で1つのグループアドレスとし、左側がホテルチーム・右側がデザイナーチームというように分け、「好きなところに座ってください」とルールを設けました。
営業とデザイナーが同じフロアで気軽に話せる場所を複数用意したことや、上下昇降デスクを採用して席の自由度を確保したことなどがポイントです。
2.オリバー東京・日本橋オフィス:様々なスペースで働けるABW空間

レイアウトを工夫し、個々の働き方に合わせて、自由に席を選択して働くというABW的な働き方を推進したのが、オリバー東京・日本橋オフィスです。
コミュニケーション、日常業務、集中執務、会議といったさまざまなシーンに合わせて空間を選択できるよう、フロアの中にさまざまなスペースを用意しました。

例えばアール形状のロングデスクを採用し、自然に外の景色が目に入るような工夫をしたり、数名が集まってコミュニケーションをとれるようなボックス席を用意したりしています。

また、電源の位置などを最適化して、フリーアドレスでも快適に作業できるようにしました。
フリーアドレスレイアウトの効果と基本ルール

- スペース効率とコミュニケーション向上
- 社員が安心してフリーアドレスに慣れるための工夫
- 荷物整理・ロッカー運用など基本的なルールを押さえる
以下では、フリーアドレスレイアウトの効果や基本的なルールについて、解説します。
スペース効率とコミュニケーション向上
フリーアドレスレイアウトが浸透していくと、先にも述べたようにABWが推進されて、社内のコミュニケーションが活性化したり、作業効率が上がったりします。
その他のポジティブな効果としては、スペース効率が上がることでオフィスの面積をコンパクトにすることができ、家賃を抑えられることなどが挙げられます。
社員が安心してフリーアドレスに慣れるための工夫
固定席からフリーアドレスに移行するにあたって、「荷物はどうするのか?」といった様々な不安が起こることは、先述した通りです。
従業員が抱く心理的な抵抗を整理し、共有・認識することがポイントです。
「慣れるまでは面倒に感じるかもしれないが、その先に確かなメリットがある」ということを、しっかり伝えましょう。
荷物整理・ロッカー運用など基本的なルールを押さえる
フリーアドレスをうまく運用するためには、基本的なルールの策定が必要不可欠です。
もちろん当社なりのノウハウはありますが、すべての企業に当てはまることはないため、その企業に合ったルールをその都度考えていきます。
最初に決めたルールのままでうまくいく場合もあれば、後に調整が必要になる場合もあります。
基本的なルールとしては、
- 退勤の際はデスクの上を片付ける(自分の物を残さない)
- 個人の物は個人ロッカーに入れる
- 共有物の場所を決める
- 食べ物を食べていいエリアを決める(飲み物については強く制限しない)
などが挙げられます。
会議室の使用に関するルールも定めたほうがよいでしょう。
「毎日違う席に座る」というルールを設けるオフィスもありますが、煩わしさを感じる人が多いようです。
<POINT>オリバーがフリーアドレスのレイアウトで重要視すること
当社がフリーアドレスのレイアウトを行う際は、「電話・複合機をどこに・何台置くのか?」を、まず重要視します。
次いで、モニターのサイズ・数も、慎重に検討します。
そして、「全部無線LANでいいのか?」「有線LANが必要になる箇所はないか?」なども、考えます。
全体としては、「どこを揃えるか?」「どこを特徴づけるか?」「どのようにABWを実現するか?」など、入念なヒアリングを基にして決めていきます。
フリーアドレスレイアウト導入で陥りやすい失敗と注意点

- ルールが浸透せず「固定席化」してしまう
- 荷物やロッカー運用の不備によるスペース効率の低下
- 従業員の負担に対するケア
上記は、フリーアドレスレイアウトの導入で陥りやすい失敗や、注意点です。
フリーアドレスの導入に失敗しないために押さえておくべきポイントを、以下で解説します。
ルールが浸透せず「固定席化」してしまう
「(空いているけど)ここは〇〇さんの席」というように決まってしまうと、フリーアドレスを掲げている意味がなくなってしまいます。
先述したようにフリーアドレスには向き・不向きがあるため、「導入する部署と導入しない部署の両方があることを許容できる文化」を醸成することが必要です。
フリーアドレスのルールが浸透してくると、固定席で働いているメンバーも「自由席で働いてみたい」と思うようになります。
荷物やロッカー運用の不備によるスペース効率の低下
フリーアドレスレイアウト導入の初期は、荷物の管理がしづらいことがデメリットです。
特に個人ロッカーを整えることは大切で、ここに不備があると、逆にスペース効率が低下してしまいます。
従業員の負担に対するケア
フリーアドレスを実行すると、従業員によっては
- 勤務のたびに空席を探すことが面倒
- 隣に誰が座るのか気になる
といった、心理的な負担が生じることがあり、こうした負担を放置すると、「自分が会社に大切にされていないのでは?」と感じてしまいます。
オフィススペースの効率化はフリーアドレスの大きな目的の1つですが、それだけではなくコミュニケーションの活性化など、企業の生産性や創造性、エンゲージメントの向上をもたらすきっかけとなり、社員一人ひとりにとってのメリットにもつながります。
そういったことを、きちんと伝えてフォローすることが大切です。
まとめ
以上、オフィス移転・改修を手がける株式会社オリバーの視点から、
- 初めてでも導入しやすいフリーアドレスレイアウトの進め方のポイント
- 導入しやすくおしゃれなフリーアドレスオフィスのアイデア
- 【事例】オリバー自社オフィスのフリーアドレスレイアウト
- フリーアドレスレイアウトの効果と基本ルール
- フリーアドレスレイアウト導入で陥りやすい失敗と注意点
についてご紹介しました。
- スモールスタートする(導入しやすい部署から導入する)
- 会社に合ったルールを策定する
- マインドセットやフォローを怠らず、フリーアドレスのメリットをしっかり伝える
といったことが、初めてのフリーアドレスレイアウトを成功させるために、大切なことです。
今回のコラムを、初めてのフリーアドレスレイアウトの参考にしていただければ幸いです。